Przygotowują
tereny do sprzedaży działek. . .
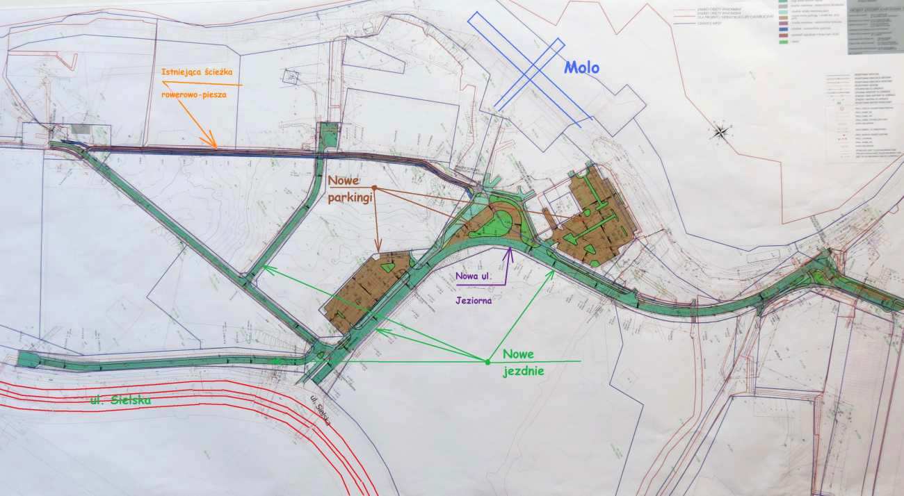
(plaża miejska i ul. Jeziorna)
Napisałem poprzednio, że"na
wiosnę nie poznasz tego terenu ...". Tak w istocie będzie
nie tylko dla tego, że wycięto mnóstwo drzew, bo to już
w Olsztynie norma, ale zbudują wszystko inaczej niż dotychczas było.
Nowe drogi dojazdowe do plaży, nowe parkingi, pętla autobusowa, ścieżki
piesze i rowerowe. Wszystko to bardzo potrzebne zwłaszcza, że zanim
to powstanie teren będzie dodatkowo uzbrojony w kanalizację, energie
elektryczną itp., po to by byli chętni na zbudowanie odpowiedniej
bazy. . . Dobrze, ale, jak mi się zdaje, metoda ogałacania terenu
z drzew, które nie rosną na zawołanie jest iście na łatwiznę.
Widać
z zamieszczonego
tu planu, że nowe drogi rysowano tak, aby były najkrótsze z możliwych,
a co po drodze - wyciąć ! Żadnej fantazji i poszanowania istniejącej
sytuacji. Do plaży zmierza się spacerkiem a nie podbić kartę pracy |
||||||
![]() |
||||||
![]() |
||||||
![]() |
||||||
![]() |
||||||
![]() |
||||||
Tu będzie główny parking i zapewne,
dlatego żeby samochodom było tak samo jak plażowiczom będą musiały
się opalać, a w środku nich będzie można przygotować jajecznicę
dla spragnionych... Wycięto w pień wszystkie możliwe drzewa! |
||||||
![]() |
||||||